АДМИНИСТРАЦИЯ ГОРОДСКОГО ОКРУГА
"ГОРОД АРХАНГЕЛЬСК"
П О С Т А Н О В Л Е Н И Е
от 29 октября 2025 г. № 1795
О внесении изменения в схему размещения нестационарных
торговых объектов на территории городского округа
"Город Архангельск"
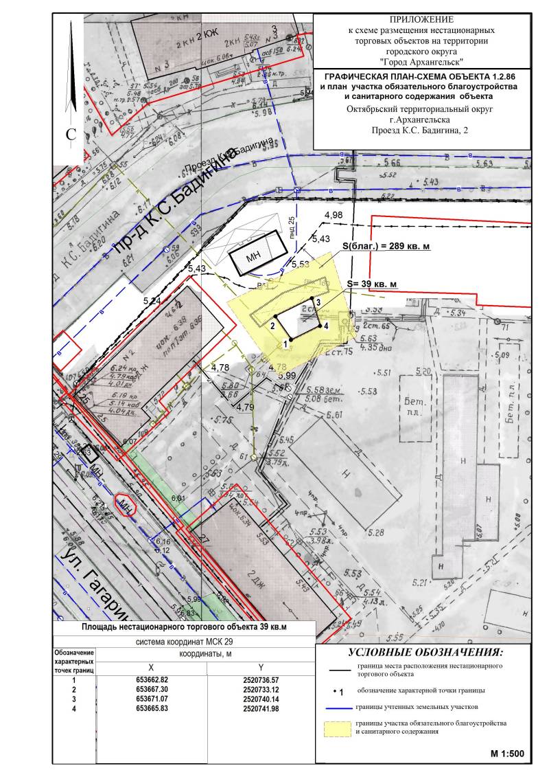
1. Подраздел 1.2 "Октябрьский территориальный округ" раздела 1 "Павильоны, киоски" схемы размещения нестационарных торговых объектов
на территории городского округа "Город Архангельск", утвержденной постановлением мэрии города Архангельска от 02 июля 2012 года № 178
(с изменениями и дополнениями), дополнить пунктом 1.2.86 следующего содержания:
|
"1.2.86 |
Проезд К.С. Бадигина, 2 |
1 |
1 |
Продовольственные товары* |
10 лет". |
2. Опубликовать постановление в газете "Архангельск – Город воинской славы" и на официальном информационном интернет-портале городского округа "Город Архангельск".
Глава городского округа
"Город Архангельск" Д.А. Морев
